CAD图纸
搜索
频道分类
3D模型
SU模型
贴图材质
全球案例
灵感图库
CAD图纸
方案文本
效果图
课程
一级分类
全部
CAD图库
家装空间
工装空间
园林景观
建筑设计
节点详图
机电设备
结构设计
二级分类
全部
建筑电气
电力工程
建筑给排水
园林景观给排水
市政给排水
水处理
建筑暖通
市政暖通
风格
全部
欧式古典
日式
后现代
地中海
新中式
法式
中式
北欧
混搭
田园
欧式简约
美式
东南亚
工业风
新古典
现代简约
其他
全部
免费
付费
VIP
综合
全部
隧道段改造工程给水节点大样图CADcad图纸
岩棉保温材施工图例cad图纸
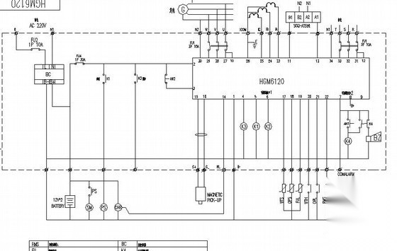
柴油发电机控制线路图cad图纸
0.47MW扶贫项目光伏发电项目设计图纸(2017)_电气图cad图纸
某厂房水泵房布置平面图_市政给排水_给排水图cad图纸
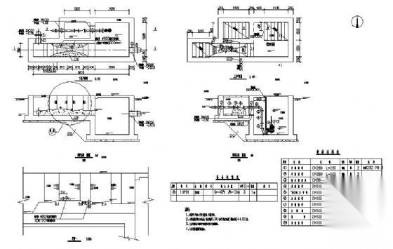
某印染污水处理站斜管沉淀池工艺图cad图纸
管道系统标准图例cad图纸
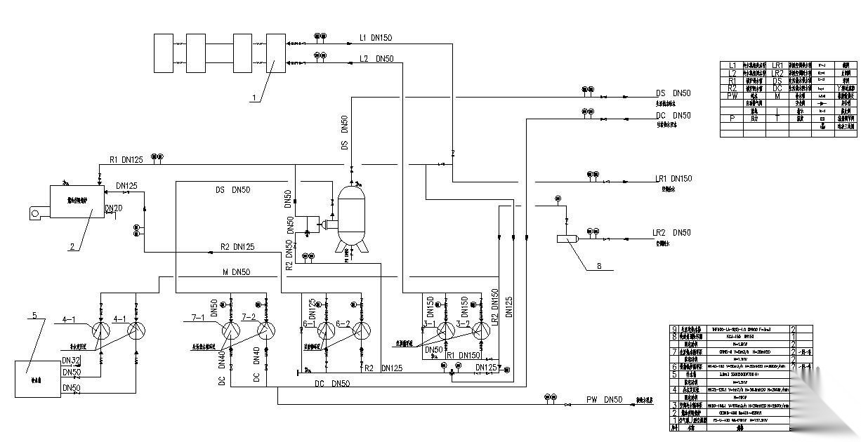
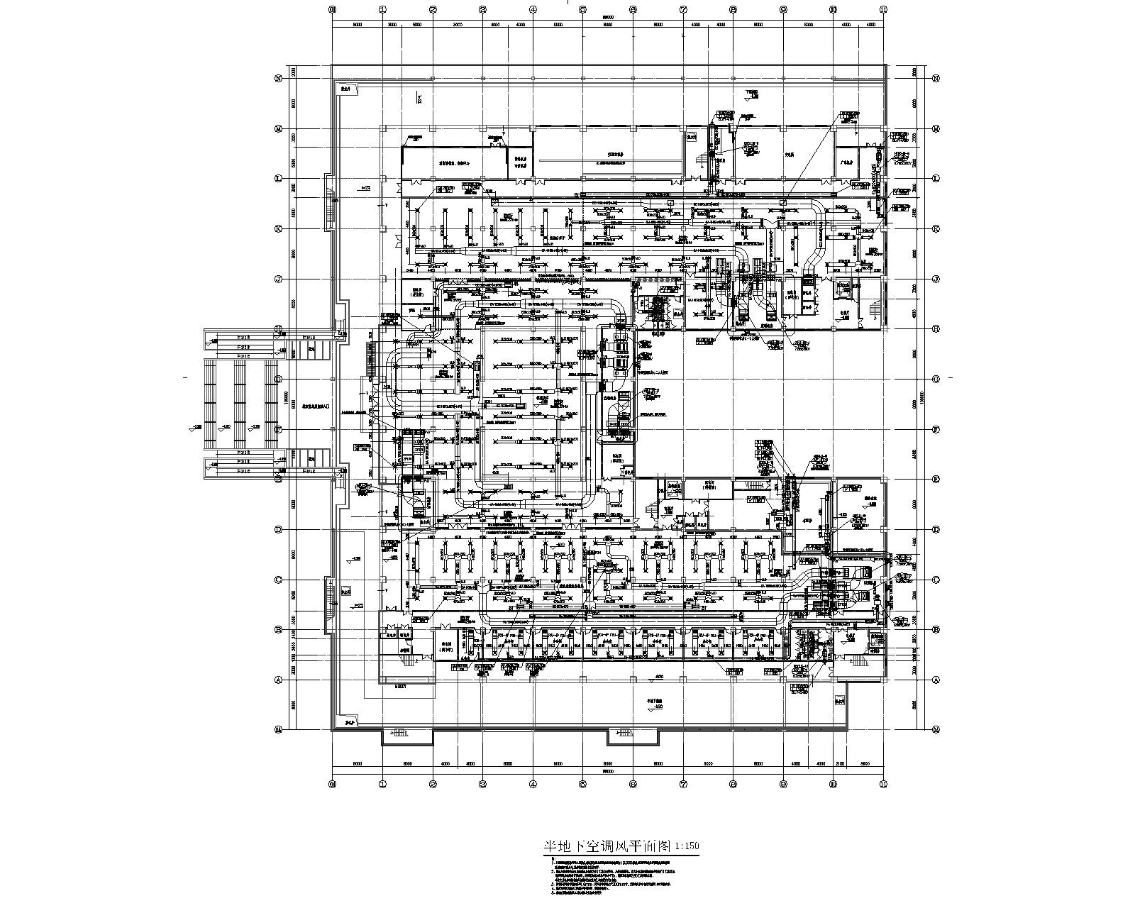
河南四层城市规划展览馆综合楼暖通施工图_建筑暖通cad图纸
400t/h给水厂工艺全套施工图cad图纸
冷却塔全套PLC控制原理图_电气图cad图纸
电信电力管井大样图cad图纸
[浙江]某综合实验室水暖电总施工图_建筑暖通cad图纸
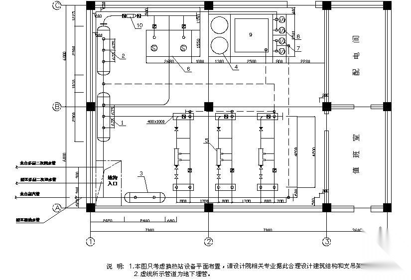
某小区热力站管道平面图cad图纸
某别墅供暖制冷及生活热水系统图cad图纸
电气符号集合cad图纸
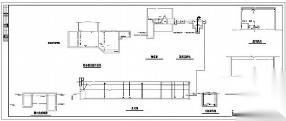
某公司生活污水处理设计图纸cad图纸
波形潜流人工湿地(W-SFCW)图纸cad图纸
某道路排水管道图纸_市政给排水_给排水图cad图纸
[南昌]能源厂房电气自动控制设计图纸_电气图cad图纸
内蒙传统疗法中心地暖平面图(内含计算书)_建筑暖通cad图纸
某公寓工程空调板详图cad图纸
给排水及水处理标准图例图集大全cad图纸
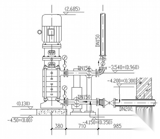
各种水泵详细的外形图_市政给排水_给排水图cad图纸
布袋除尘器示意图cad图纸
常用电气符号和用途cad图纸
30米钢筋独立避雷针安装大样图cad图纸
某10吨每小时超纯水系统设计方案cad图纸
大型商业广场空调_通风_防排烟设计图纸2019_建筑暖通cad图纸
[深圳]15万平总19栋殡仪馆污水处理厂给排水消防管道施..._建筑给排水_给排水图cad图纸
某浮动取水泵站全套施工图cad图纸
化工厂废水终端污水处理工程施工图纸(含工艺图_配筋图...cad图纸
[贵州]酒库暖通空调通风设计施工图纸_建筑暖通cad图纸
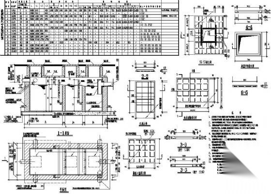
城市污水处理厂成套图纸cad图纸
各种水泵cad图纸大全cad图纸
开利39G组合式空调机组详图cad图纸
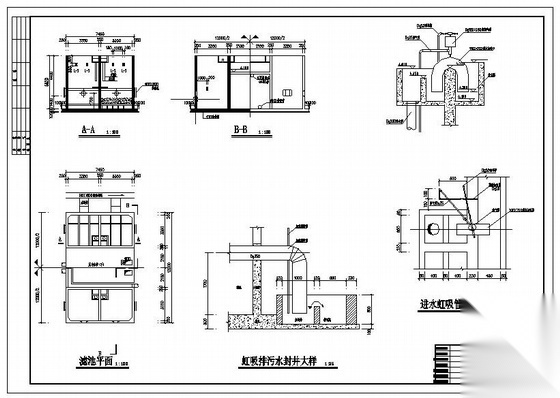
某化粪池大样图cad图纸
电力电缆敷设通用图cad图纸
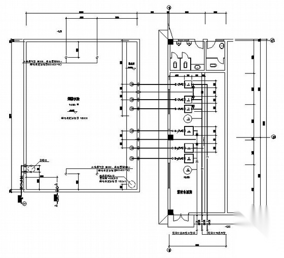
某柴油发电机房水喷雾自动灭火系统设计图_建筑给排水_给排水图cad图纸
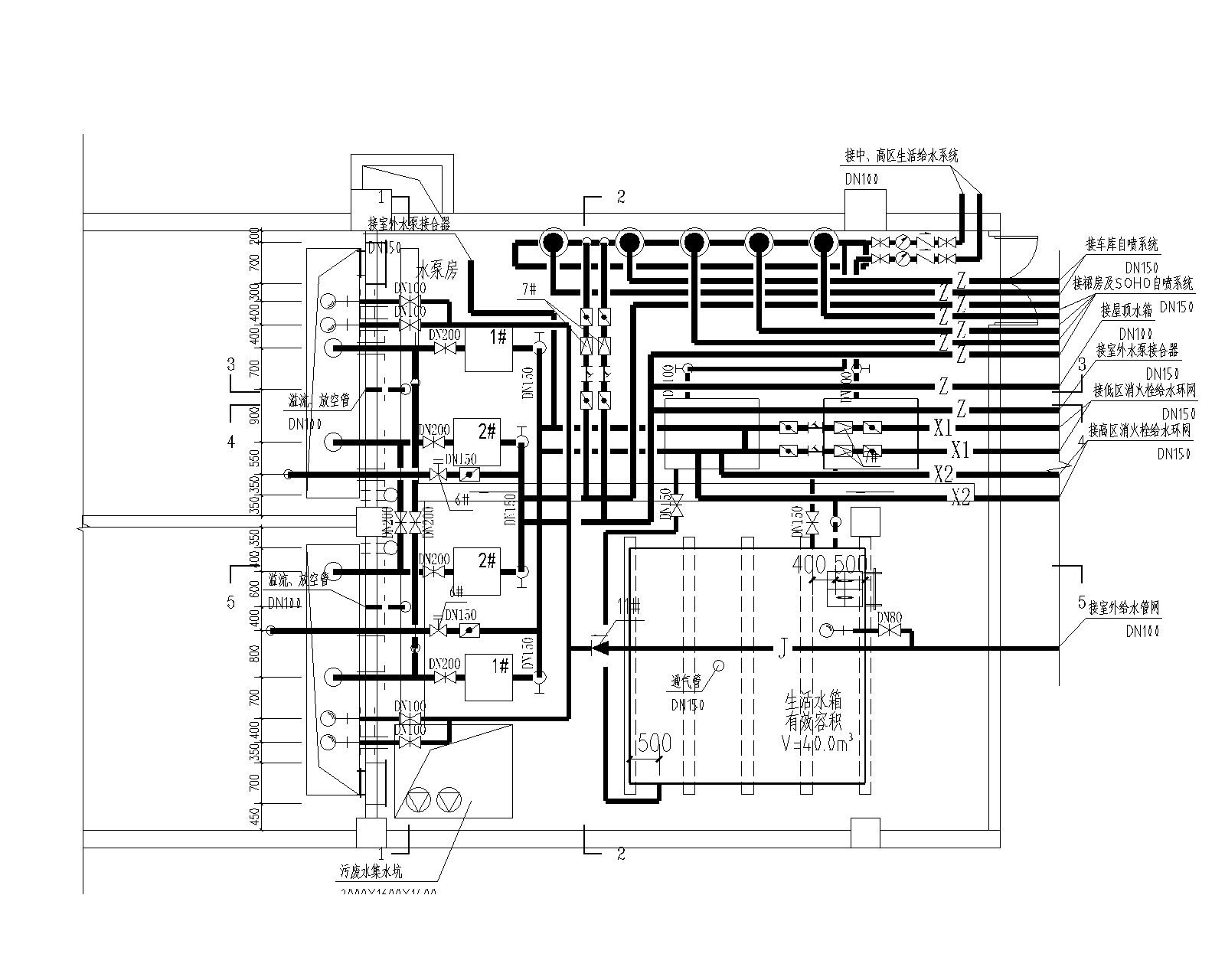
[海南]25万平超高层商务大厦给水中水湿式灭火系统施工..._建筑给排水_给排水图cad图纸
[甘肃]高层建筑给排水施工图(含给排水平面及系统,消..._给排水图cad图纸
数据机房的通风_事故通风_防排烟设计图2019_建筑暖通cad图纸
深圳某小区室外给排水总平面图_建筑给排水_给排水图cad图纸
[福建]大型LNG站线车站工程给排水管道消防系统设计图..._建筑给排水_给排水图cad图纸
厦门某配电箱照明系统控制原理图_电气图cad图纸
广东某污水处理厂套图cad图纸
35kv变电站典型设计图纸_电气图cad图纸
某工厂变配电室低压柜配电系统图_电气图cad图纸
脱硫塔除雾器安装图cad图纸
巴氏计量槽施工图cad图纸
10KV配电系统电气原理图_电气图cad图纸
GCS低压开关柜一次系统图cad图纸
小区配电室电缆沟作法图cad图纸
CAD制图电气元件库cad图纸
电气符号CAD图cad图纸
2019甲类仓库给排水施工图_建筑给排水_给排水图cad图纸
[马来西亚]碧桂园金海湾给水消防排污全套施工图170张..._建筑给排水_给排水图cad图纸
西安龙御国际大厦商业办公住宅公寓暖通设计_建筑暖通cad图纸
某地燃气规划图_市政暖通cad图纸
供水管线穿高速公路顶管工程平面图_市政给排水_给排水图cad图纸
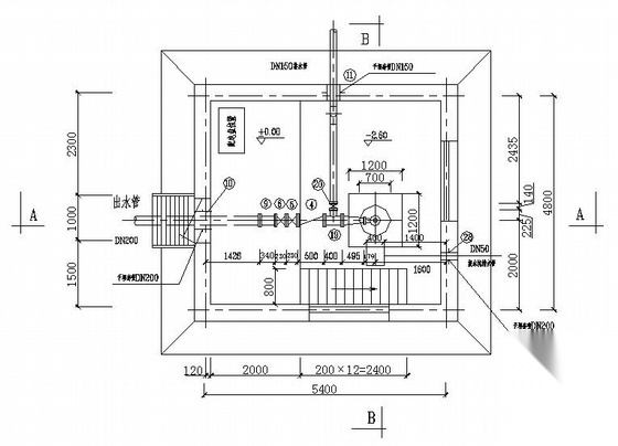
半地下式深井潜水泵房井室工艺布置图_市政给排水_给排水图cad图纸
累计已上架6561694个cad图纸 最近更新时间:12/8/2025, 16:23:47
上一页
1
2
3
4
5
下一页
相关cad图纸
最新cad图纸
友链QQ:3112979177
建筑电气cad图纸
电力工程cad图纸
建筑给排水cad图纸
园林景观给排水cad图纸
市政给排水cad图纸
水处理cad图纸
建筑暖通cad图纸
市政暖通cad图纸
消防给水系统cad图纸
其他机电图纸cad图纸
防排烟系统cad图纸
其他给排水cad图纸
电气图cad图纸
景观给排水cad图纸
景观电气cad图纸
火灾自动报警系统cad图纸
通风系统cad图纸
污水提升系统cad图纸
采暖系统cad图纸
通信网络系统cad图纸
客服
消息
收藏
下载
最近