CAD图纸
搜索
频道分类
3D模型
SU模型
贴图材质
全球案例
灵感图库
CAD图纸
方案文本
效果图
课程
一级分类
全部
CAD图库
家装空间
工装空间
园林景观
建筑设计
节点详图
机电设备
结构设计
二级分类
全部
软装家具
柜类
厨卫设施
五金构件
人物植物
工装图库
景观
制图规范
其他图库
三级分类
全部
厨房设施
卫浴设施
风格
全部
欧式古典
日式
后现代
地中海
新中式
法式
中式
北欧
混搭
田园
欧式简约
美式
东南亚
工业风
新古典
现代简约
其他
全部
免费
付费
VIP
综合
全部
30天内新作品
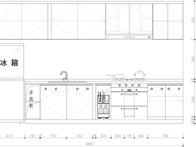
现代厨房设施_厨房设施电器图_施工图cad图纸
简约轻奢厨房设施_厨房_厨房布置图_厨房平面_厨房图块_施工图cad图纸
现代厨房设施_水槽_厨房水槽_燃气灶_集成灶_油烟机_施工图cad图纸
现代厨房设施_商用厨房设备_施工图cad图纸
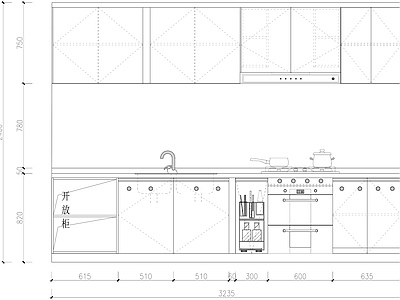
现代厨房设施_厨房立面图_施工图cad图纸
现代厨房设施_厨房立面图_施工图cad图纸
现代厨房设施_定制厨房动态块_施工图cad图纸
现代厨房设施_厨房设施_施工图cad图纸
现代厨房设施_厨房设施图_施工图cad图纸
现代厨房设施_电器设备图块_施工图cad图纸
30天内热门厨房卫浴设施
现代厨房设施_杯子_咖啡杯_红酒杯_茶杯水杯_餐具餐杯_施工图cad图纸
现代厨房设施_切菜板_砧板_厨具_案板_厨房用品_施工图cad图纸
现代厨房设施_厨具餐具_烹饪工具_铲子勺子_笼屉蒸笼_厨房用品器材_施工图cad图纸
30天内热门厨房卫浴设施
现代厨房设施_锅具餐具_平底锅_炒锅_汤锅煎锅_烹饪厨具_施工图cad图纸
30天内热门厨房卫浴设施
现代厨房设施_酒杯_水杯_扎啤杯_啤酒杯_餐具杯具用品_施工图cad图纸
现代厨房设施_罐子瓶子_玻璃罐_密封罐_食物储存盒_厨房餐具容器_施工图cad图纸
现代厨房设施_水壶_茶壶_烧水壶_热水壶_厨房厨具用品_施工图cad图纸
30天内热门厨房卫浴设施
现代厨房设施_瓶子_花瓶酒瓶_水瓶饮料瓶_罐子容器_厨具餐具用品_施工图cad图纸
30天内热门厨房卫浴设施
现代厨房设施_刀叉_勺子_叉子_餐具厨具_厨房用品_施工图cad图纸
现代厨房设施_灶具平面图_施工图cad图纸
现代厨房设施_洗菜盆平面图_施工图cad图纸
30天内热门厨房卫浴设施
现代厨房设施_餐具餐盘_盘子_餐碗_厨房用品_餐桌用品_施工图cad图纸
现代厨房设施_橱柜_厨房操作台_备餐台_后厨不锈钢橱柜_厨房设施_施工图cad图纸
现代厨房设施_罐子瓶子_密封罐_玻璃罐_储物瓶_厨房用品器皿_施工图cad图纸
现代厨房设施_盘子_厨具餐具_餐盘_容器器皿_厨房用品器材_施工图cad图纸
现代美式厨房设施_集成灶_燃气灶_洗菜盆_冰箱洗衣机电磁炉_厨房用品平面图_施工图cad图纸
30天内热门厨房卫浴设施
现代厨房设施_灶台_灶具_厨具_水槽_炉具_施工图cad图纸
30天内热门厨房卫浴设施
现代厨房设施_厨具餐具_厨房用品_餐桌用品_锅具杯具_厨房设施_施工图cad图纸
现代欧式厨房设施_水槽_灶台_厨房电器立体图_施工图cad图纸
年度最热厨房卫浴设施
现代厨房设施_厨具_灶具_炉具_后厨设施_电器_施工图cad图纸
现代厨房设施_厨卫用具设备_厨房卫浴设施_厨卫工具装置_厨卫配套用品_厨卫生活器具_施工图cad图纸
现代厨房设施_厨房灶具与水槽_厨房炉具配水槽_灶具水槽组合_厨房水槽灶具集成_嵌入式灶具水槽设_施工图cad图纸
现代厨房设施_厨房水槽布局图_厨房水槽配置图_厨房水槽安装图_厨房水槽结构图_厨房水槽设计图_施工图cad图纸
现代厨房设施_各种厨房用品_多样化厨房用具_厨房用品系列_不同类型的厨房器_各款厨房工具_施工图cad图纸
现代厨房设施_厨房灶具布局图_厨房灶具结构图_厨房灶具安装图_厨房灶具示意图_厨房炉具设计图_施工图cad图纸
现代厨房设施_水壶茶壶图块_施工图cad图纸
现代厨房设施_厨房电器图_施工图cad图纸
现代厨房设施_乌龟盘子_施工图cad图纸
现代厨房设施_厨房_中央厨房_学生营养餐_高铁飞机快餐_连锁餐饮_施工图cad图纸
现代厨房设施_厨房用品_厨具_厨房摆件_餐具_置物架_锅_碗_碟子_茶壶_施工图cad图纸
年度最热厨房卫浴设施
现代厨房设施_厨具_炉具_灶具_灶台_水槽_施工图cad图纸
现代厨房设施_集成灶_灶台_施工图cad图纸
30天内热门厨房卫浴设施
现代厨房设施_水龙头_施工图cad图纸
现代厨房设施_厨房橱柜图库_施工图cad图纸
现代厨房设施_厨房设施_厨房电器_商用厨房设备_餐厨设备器材_施工图cad图纸
现代厨房设施_厨房家电_厨房用品_施工图cad图纸
现代简约厨房设施_水槽_灶台_集成灶_施工图cad图纸
中式现代厨房设施_厨房设备整体布局_厨房设备_平面图cad图纸
30天内热门厨房卫浴设施
现代厨房设施_洗碗机_嵌入式洗碗机_烘干机_厨房电器_消毒柜_施工图cad图纸
现代厨房设施_烤箱_微波炉_蒸箱_烘培炉_厨房电器_施工图cad图纸
现代厨房设施_厨房用具_厨房挂件_厨房吊台_玻璃杯_酒杯_施工图cad图纸
现代厨房设施_厨房水槽_洗菜池_洗菜盆_厨房设施_不锈钢水池_施工图cad图纸
现代厨房设施_抽烟机_排烟机_燃气灶_双眼灶_厨房电器_施工图cad图纸
厨房设施_灶台平面图库_灶台_施工图cad图纸
厨房设施_灶台平面图库_施工图cad图纸
厨房设施_图库大样_施工图cad图纸
30天内热门厨房卫浴设施
现代厨房设施_厨房洗手池_商用饭店洗菜池_不锈钢水槽_厨房设施_施工图cad图纸
现代厨房设施_餐柜厨房设施_橱柜餐柜_商用橱柜_冰柜冰箱_保鲜柜_施工图cad图纸
现代厨房设施_垃圾桶_施工图cad图纸
现代欧式厨房设施_厨房橱柜厨房图块_施工图cad图纸
累计已上架6564828个cad图纸 最近更新时间:12/10/2025, 03:26:06
上一页
1
2
3
4
5
…
16
下一页
相关cad图库
最新cad图库
友链QQ:3112979177
卫浴设施cad图库
现代厨房设施cad图库
简约轻奢厨房设施cad图库
客服
消息
收藏
下载
最近